• interiors
  • leisure
  • residential
  • commercial
  • apartment refurbishment, KL
  • clapham, London, UK
  • west hampstead, London, UK
  • clapham, London, UK
images 1 2 3
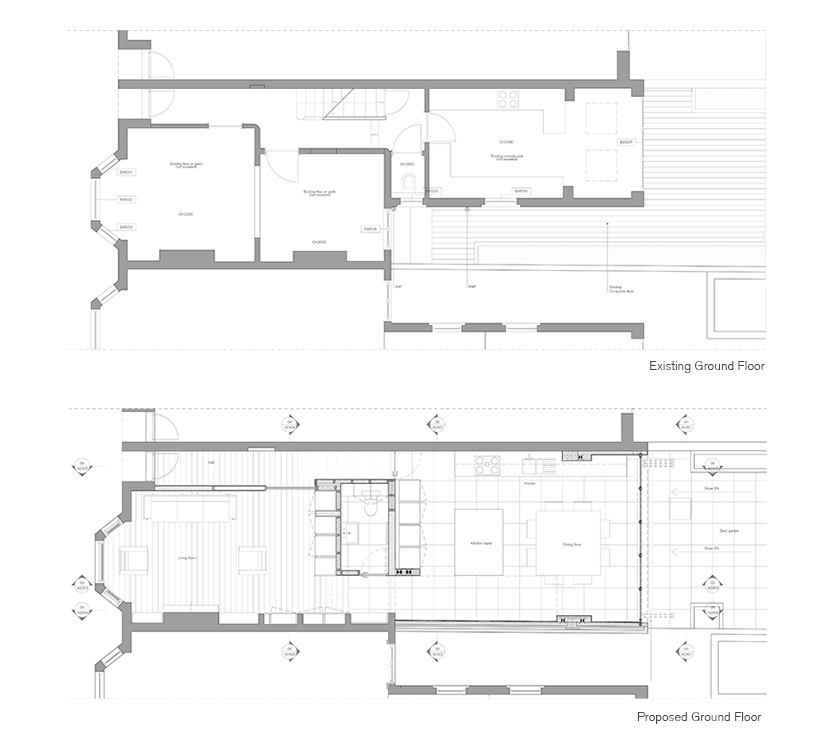
drawings 1
  • home
  • projects
  • news
  • about
  • contact